Суть: функционал позволяет оставлять текстовые комментарии к местоположениям при создании нарушений и осмотров, а также просматривать эти комментарии на странице плана.
Суть: функционал позволяет оставлять текстовые комментарии к местоположениям при создании нарушений и осмотров, а также просматривать эти комментарии на странице плана.
Комментирование местоположений доступно всем инициаторам нарушений и осмотров.
Комментирование местоположений
Пользователю необходимо как обычно начать процедуру добавления нарушения или осмотра, выбрав необходимую стадию и начав заполнение полей.
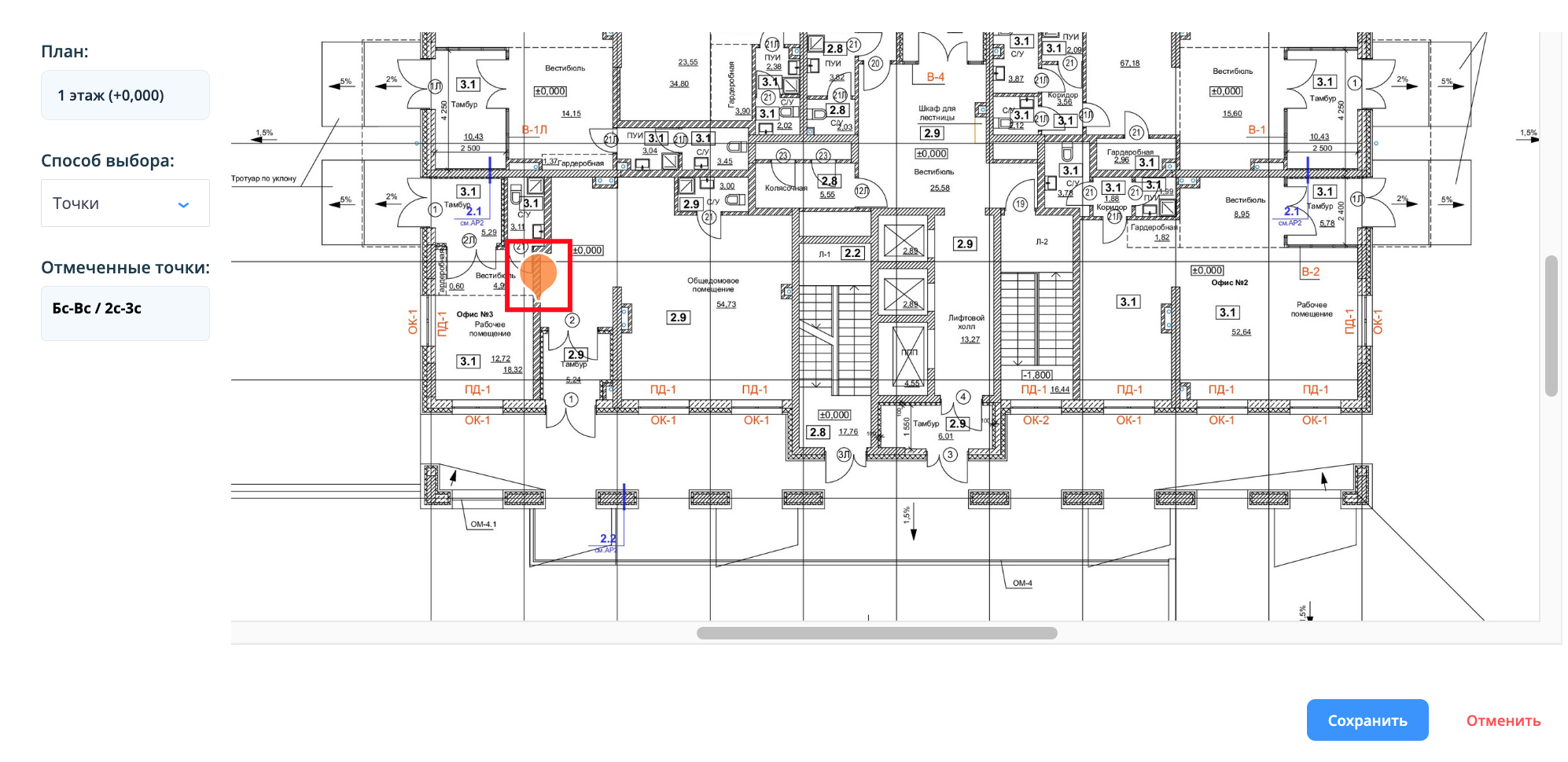
После локализации места нарушения/осмотра на плане необходимо кликнуть на местоположение, где нужно оставить комментарий. Если место нарушения было обозначено точкой, то необходимо кликнуть на точку. Если место нарушения локализовано сектором, то нужно кликнуть на сектор.
3. После нажатия на точку или сектор появится окно добавления комментария. В поле “Добавьте комментарий” необходимо ввести текст комментария.
4. Затем нажать на кнопку “Сохранить”.
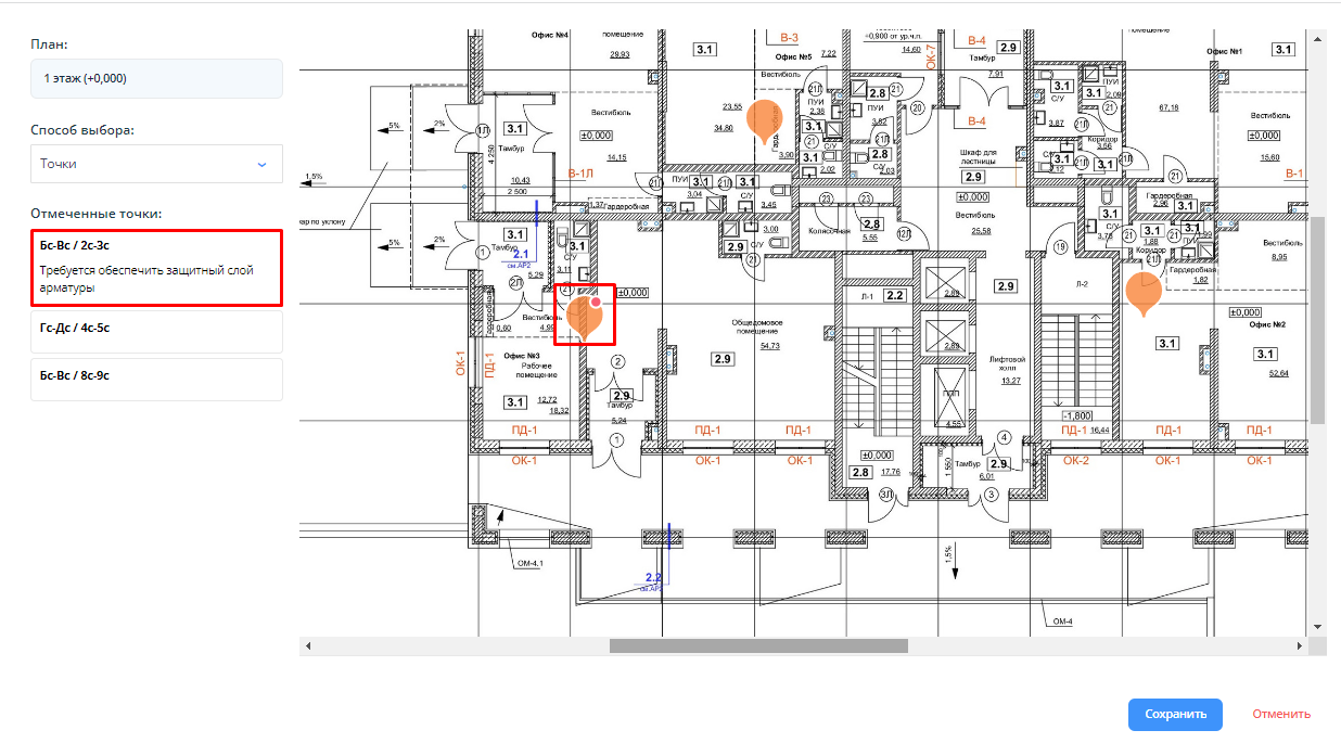
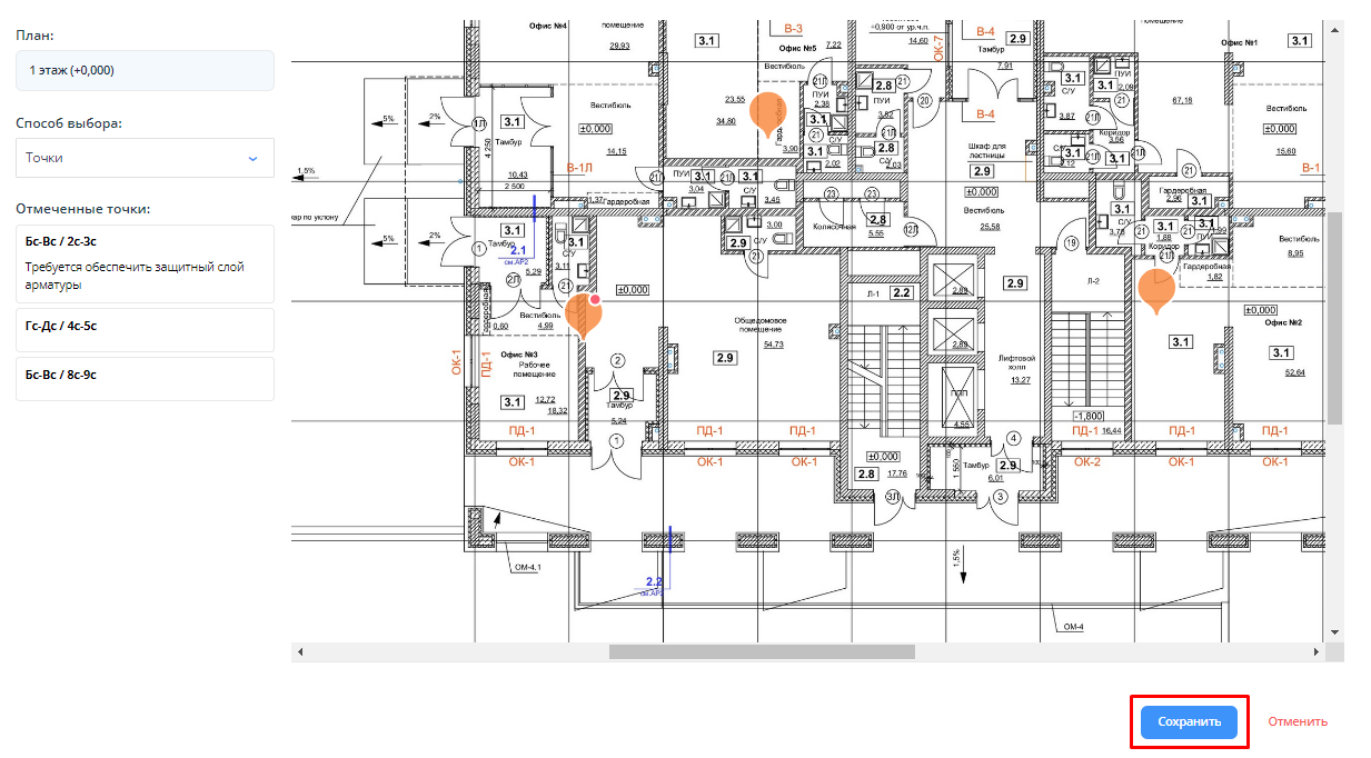
У местоположения, которое локализовано точкой и где оставлен комментарий, появляется красный индикатор, а в левом блоке отображается текст комментария.
У местоположения, которое локализовано сектором и где оставлен комментарий, меняется цвет с голубого на оранжевый. В левом блоке также отображается текст комментария.
Если необходимо комментирование для нескольких местоположений, то нужно повторить ту же самую процедуру.
5. После сохранения текстовых комментариев нажать на кнопку “Сохранить”.
Комментирование местоположений доступно и у созданных нарушений и осмотров. Для этого необходимо перейти в карточку нарушения/осмотра и начать редактирование. Затем в окне редактирования нажать на поле “Место” и на плане у нужного местоположения оставить комментарий согласно действиям, описанным выше.
Удаление комментариев у созданных нарушений и осмотров также осуществляется через редактирование. В открывшемся окне редактирования комментария нужно очистить поле “Введите комментарий” и нажать на кнопку “Сохранить”.
В окне ввода комментария расположена кнопка “Удалить”, которая удаляет выбранную точку или сектор.
Просмотр комментария у созданного нарушения
Для просмотра комментария необходимо перейти в карточку нарушения или осмотра.
Затем кликнуть на ссылку просмотра плана, на котором локализовано местоположение нарушения.
3. Откроется план этажа с отмеченными точками/секторами.
О наличии комментария информирует красный индикатор (если место нарушения локализовано точкой).
О наличии комментария у сектора информирует его оранжевый цвет.
Для отображения текста комментария необходимо кликнуть на точку или сектор.
4. Окно просмотра комментария закрывается по клику на крестик в правом верхнем углу.












