1. Добавление нарушений из реестра нарушений
Для того, чтобы начать процедуру добавления нарушения пользователю необходимо на экране “Разделы” перейти в реестр нарушений, нажав на плитку “Нарушения”.
Далее нужно нажать кнопку “Добавить”.
После нажатия кнопки “Добавить” откроется экран выбора процесса, в рамках которого создается нарушение:
Проверка (стадия “Строительство”)
Внутренняя приемка (стадия “Приемка”)
Передача собственнику (стадия “Передача”)
Гарантийное обращение (стадия “Гарантия”)
Если в роли пользователя предусмотрено ограничение на создание нарушений в рамках определенных процессов, то на экране выбора будут отображаться только доступные процессы.
После выбора нужного процесса откроется экран выбора сущности, в рамках которой создается нарушение. Если пользователю нужно создать новую родительскую сущность, то необходимо на данном экране выбрать соответствующее значение.
Если создаваемое нарушение необходимо добавить в ранее созданную родительскую сущность, то из списка нужно выбрать соответствующее значение.
Далее пользователь может выбрать помещение либо структуру, в рамках которой создается родительская сущность. Для этого нужно открыть раскрывающийся список с типом помещения либо структур и выбрать нужный элемент.
Этот шаг можно пропустить в рамках создания сущностей “Проверка” и “Внутренняя приемка”.
Откроется экран добавления нарушения. Необходимо начать заполнение полей нарушения:
В поле “Описание” необходимо указать суть выявленного нарушения.
При нажатии на кнопку “Прикрепить вложение” необходимо выбрать файл или сфотографировать нарушение на месте.
В поле “Вид работ” открывается экран выбора вида работ, нужно выбрать тот, по которому регистрируется нарушение.
При нажатии на поле “Срок устранения” открывается календарь и компонент выбора времени, необходимо указать дату и время, по истечении которого требуется устранить нарушение, и нажать на кнопку “Применить”.
При нажатии на поле “Основание” открывается выпадающий список нормативных документов. Можно выбрать нужный либо ввести название какого-либо внутреннего регламента. При нажатии на кнопку “Выбрать основание” в экране выбора можно найти нужный документ по ключевым словам или номеру.
При нажатии на поле “Метки” открывается экран выбора доступных наборов меток нарушений. Для индикации нарушения можно выбрать как одну метку, так и несколько.
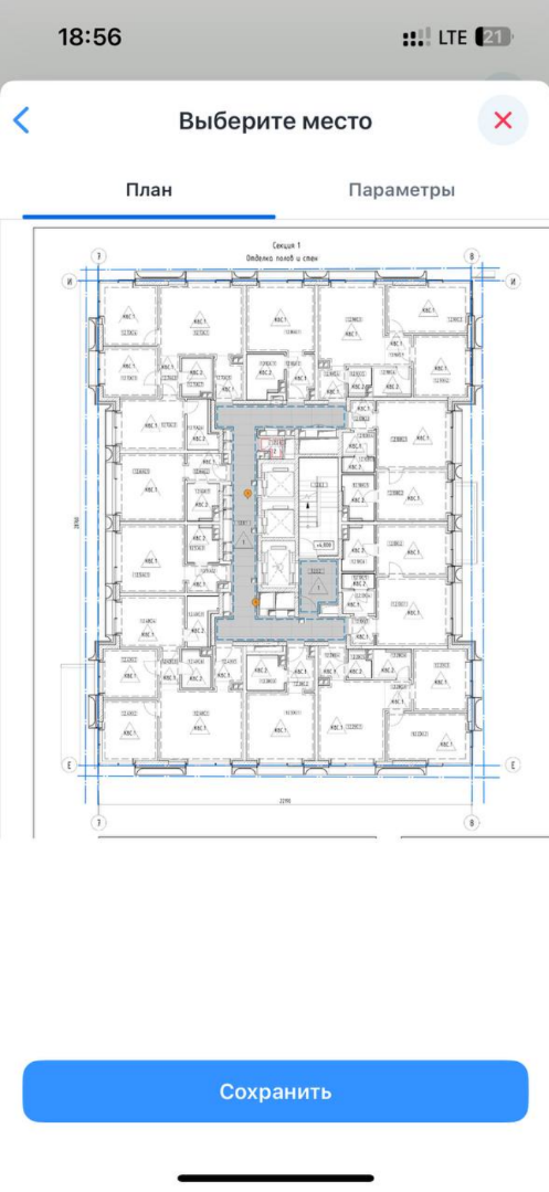
При нажатии на поле “Место” открывается окно выбора этажа на плане. Необходимо выбрать нужный этаж, откроется его план. В тогле “Параметры” доступна смена способа выбора с точки на сектор, если это необходимо. Далее точкой или сектором обозначить на плане местоположение нарушения. Система автоматически определит строительные оси. К точкам можно добавить текстовый комментарий, если это необходимо.
Если нужно удалить выбранную точку либо сектор, необходимо перейти в тогл “Параметры” и по нажатию на иконку корзины удалить нужные элементы. Далее нажать на кнопку “Сохранить”.
При нажатии на поле “Исполнитель” открывается окно выбора исполнителей по создаваемому нарушению. Необходимо выбрать того, кем будет устраняться нарушение. Можно указать как всю группу исполнителей, так и конкретного исполнителя. Далее нажать на кнопку “Применить”.
При выборе всей группы исполнителей на экране создания нарушения отобразится руководитель группы.
При нажатии на поле “Проверяющие” открывается окно выбора проверяющих по создаваемому нарушению. Необходимо выбрать того, кем будет проверятся устранения нарушения. Можно указать как всю группу проверяющих, так и конкретного сотрудника. Далее нажать на кнопку “Применить”.
В поле “Предписание” необходимо указать перечень работ, которые нужно выполнить исполнителю для устранения нарушения.
После заполнения всех полей окна создания нарушения необходимо нажать на кнопку “Сохранить”.
Все поля нарушения являются опциональными и не подлежат обязательному заполнению. Однако в соответствующих настройках предусмотрена возможность установки обязательности любого поля. Такое поле отмечается символом “*”.
Полей может быть больше, если к компании подключены пользовательские поля.
Все поля нарушения являются опциональными и не подлежат обязательному заполнению. Однако в соответствующих настройках предусмотрена возможность установки обязательности любого поля. Такое поле отмечается символом “*”.
Полей может быть больше, если к компании подключены пользовательские поля.
Пример экрана созданного нарушения
После сохранения нарушение попадает в реестр нарушений. При этом исполнителю приходит уведомление на E-mail или в приложении (в зависимости от того, как настроены уведомления).
2. Добавление нарушений из родительской сущности
Находясь в разделах объекта, нужно перейти в реестр родительской сущности, в рамках которой необходимо создать нарушение.
После чего выбрать эту родительскую сущность из реестра и нажать на кнопку “Добавить”.
Далее выбрать “Добавить нарушение”.
Откроется стандартный экран добавления нарушения, в верхней части которого отобразится информация о номере и типе родительской сущности, стадии, а также объекте и секции.
После чего начать процесс создания нарушения.
3. Работа с нарушением
При начале работы по устранению нарушения исполнителю необходимо сменить его статус с «К устранению» на «В работе». Данное действие можно выполнить как в общем реестре нарушений, так и на экране отдельного нарушения.
Если у исполнителя есть вопрос по данному нарушению, он может перейти в Чат с экрана помещения. Доступна возможность прикрепления вложений к сообщению.
После завершения работ исполнителю необходимо зайти в Чат и нажать на кнопку «Официальный ответ». Заполнить поле «Описание» и выбрать файл/сфотографировать факт устранения нарушения. После этого доступен переход к статусу “На проверке”.
В зависимости от настроек ролевой модели возможна автоматическая смена статусов.
После того, как инициатор нарушения убедился в том, что замечание устранено, он ставит статус «Устранено». На этом жизненный цикл нарушения закончен.
Если работа исполнителем не выполнена, проверяющий меняет статус на «К устранению» и процесс работы с нарушением начинается заново.
4. Добавление осмотров
Помимо нарушений в рамках родительских сущностей “Проверка” и “Внутренняя приемка” можно регистрировать осмотры (для тех случаев, когда нарушений не выявлено, но нужен отчет о том, что осмотр действительно был).
Для того, чтобы начать процедуру добавления осмотра, пользователю необходимо на экране “Разделы” перейти в реестр осмотров, нажав на плитку “Осмотр”.
Далее нужно нажать кнопку “Добавить”.
После нажатия кнопки “Добавить” откроется экран выбора процесса, в рамках которого создается нарушение:
Проверка (стадия “Строительство”)
Внутренняя приемка (стадия “Приемка”)
После выбора нужного процесса откроется экран выбора сущности, в рамках которой создается осмотр. Если пользователю нужно создать новою родительскую сущность, то необходимо на данном экране выбрать выбрать соответствующее значение.
Если создаваемый осмотр необходимо добавить в ранее созданную родительскую сущность, то из списка нужно выбрать соответствующее значение.
Далее пользователь может выбрать помещение либо структуру, в рамках которой создается родительская сущность. Для этого нужно открыть раскрывающийся список с типом помещения либо структуры и выбрать нужную.
Этот шаг можно пропустить.
Откроется окно создания осмотра со следующим набором полей: Описание, Вид работ, Место, Этаж и Исполнители. Также есть возможность прикрепить вложение. Правила заполнения данных полей такие же, как и в при создании нарушения.
Пример экрана созданного осмотра
Добавление осмотров доступно также из родительской сущности. Для этого находясь в разделах объекта, необходимо перейти в реестр родительской сущности, в рамках которой необходимо создать осмотр.
После чего выбрать такую родительскую сущность из реестра и нажать на кнопку “Добавить”.
Далее выбрать “Добавить осмотр”.
Откроется стандартный экран добавления осмотра, в верхней части которого отобразится информация о номере и типе родительской сущности, стадии, а также объекте и секции.
После заполнения полей нажать на кнопку “Сохранить”.










































